Valmissauna Piha-Tuuri 19 pukuhuoneella ja etuterassilla
13 980.00 € Original price was: 13 980.00 €.11 690.00 €Current price is: 11 690.00 €.
Tehtaalla valmiiksi rakennettu terassillinen Piha-Tuuri 19 -valmissauna toimitetaan asiakkaalle heti käyttövalmiina. Tehtaalla valmiiksi rakennettu sauna voidaan kuljettaa mihin tahansa paikkaan, jonne pääsee nosturiautolla.
Hinta ei sisällä tuotteen kuljetusta.
Saatavilla jälkitilauksella
Pihatuurin valmissaunat rakennetaan sisätiloissa, mikä takaa valmiiden talojen paremman laadun ja auttaa välttämään mahdollisia hankalia viivästyksiä työmaalla (esim. huonot sääolosuhteet).
Tehtaalla valmiiksi rakennetun pihasaunan toimitussisältöön kuuluu:
Puumateriaalina on käytetty 100 % pohjoismaista laatukuusta
Erikoisliimapuusta valmistetut (8–12 %) ovet ja ikkunat.
Ruostumattomasta metallista valmistettu kynnyssarja
Tiivistetty, ristikollinen ja saranoitu lasi-ikkuna (ISO), sisältää helat
Lasiruudullinen (ISO) ovi, sisältää helat
Löylyhuoneen ovenkarmit ovat liimapuuta ja ovi karkaistua lasia
Selkänojalliset leppälauteet ja porraspenkki
Puulämmitteinen kiuas, laadukas vesisäiliöllinen ja sulkupellillinen savupiippu. Kiukaan pohja ja U:n muotoinen lämpösuojakotelo asennettuna, kiuaskivet (sisältyy toimitukseen)
Kyllästetyt puiset perustuspuut
28 mm paksu ponttilautalattia, joka on käsitelty Tikkurilan Supi-lattiaöljyllä
Vesikouru saunan lattiassa
Ponttilautakatto
Kierretangot nurkissa
Räystäs- ja reunapellit
Katolla on musta palahuopa
Saunarakennuksen katto on eristetty 50 cm paksulla villalla
Hinnat ovat voimassa Pihatuurin tehtaan varastossa ja sisältävät arvonlisäveron.
Hinta ei sisällä rahtia, kysy rahti tarjous.
Seinät
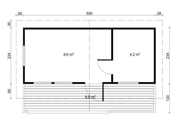
Seinän ulkomitta
550 x 234 cm
Ulkoseinän pituus
570 x 254 cm
Ulkoseinän paksuus
70 mm
Sivuseinän korkeus
215 cm
Katto
Harjakorkeus
270 cm
Katon pinta-ala (㎡)
20 ㎥
Katon kaltevuus (°)
12㎥
Kattolauta
18mm + 18mm
Oven päällinen vakiokatos
60 cm
Lattia
Lattia pinta-ala (㎡)
13 ㎡
Lattialauta
28 mm
Muut Tiedot
Ikkunat kaksinkertaisilla laseilla
2 x 965 x 790 mm / 2 x 856 x 1210 mm
Höyryhuoneen ovi
690 x 1955 mm
Ovi kaksinkertaisilla laseilla
1 x 840 x 1955 mm
Rakkennuksen tilavuus
ca. 27 ㎥
Kyllästetyt perustuspuut
40 x 120 mm
