Autokatos Tenerife
2 990.00 € Original price was: 2 990.00 €.2 130.00 €Current price is: 2 130.00 €.
Sisältää liimapuutolpat, kiinnitystarvikkeet ja asennusohjeet. Hinta ei sisällä kuljetusta ja katemateriaalia.
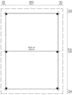
| Ulkomitat: | 360 x 516 cm |
| Hirsivahvuus: | 40 mm |
Varastossa
Kuljetus koko Manner-Suomessa nosturiautolla: 390€
Pihatuurin piha- ja puurakennustehtaan valmistamat autokatokset ovat säänkestäviä ja käytännöllisiä, ja ne pitävät autosi turvassa tai tarjoavat suojaa lumelta ja pakkaselta talvella.
Tehtaan pakettiin kuuluu:
Kestävästä liimapuusta valmistetut kantavat pylväät
18 mm kattolaudat
Kiinnitystarvikkeet
Asennusohjeet
Hinnat ovat voimassa Pihatuurin tehtaan varastossa ja sisältävät arvonlisäveron.
Hinnat eivät sisällä kuljetusta.
Seinät
Seinän ulkomitta
360 x 516 cm
Ulkoseinän pituus
380 x 536 cm
Ulkoseinän paksuus
40 mm
Sivuseinän korkeus
240 cm
Katto
Harjakorkeus
286 cm
Katon pinta-ala (㎡)
24,4 ㎥
Katon kaltevuus (°)
2°
Kattolauta
18 mm
Oven päällinen vakiokatos
20 cm
Lattia
Lattia pinta-ala (㎡)
18,6 m2
Paketin tiedot
Tuotepakkauksen mitat
576 x 108 x 38 cm
Tuotepakkauksen paino
ca 600 kg
