Pihamökki Montana, ovi ja ikkunat kaksinkertaisilla laseilla
5 500.00 € Original price was: 5 500.00 €.3 890.00 €Current price is: 3 890.00 €.
Hintaan sisältyy liimapuukarmiset kaksiosaiset lasi-ikkunat, ruostumattomasta teräksestä valmistettu kynnyspaketti, lattia, kyllästetyt perustuspuut, kiinnitystarvikkeet ja asennusohjeet. Hinta ei sisällä kuljetusta ja katemateriaalia.
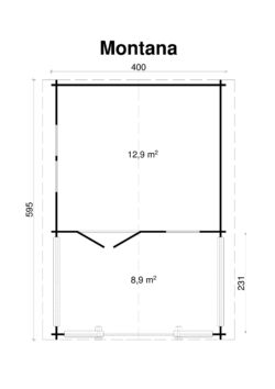
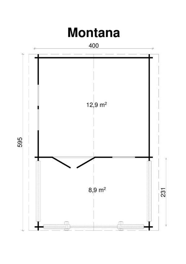
| Ulkomitat: | 380 x 575 cm |
| Hirsivahvuus: | 40 mm |
Varastossa
Kuljetus koko Manner-Suomessa nosturiautolla: 450€
Pihatuurin piharakennustehtaalla valmistettavat 40 mm:n pihavajat, hirsitalot, vajat, paviljongit, saunat, kesämökit, grillikodat ja puiset autotallit toimitetaan täydellisinä ovineen, ikkunoineen (mallista riippuen, tuote voidaan toimittaa ilman ikkunoita, yhdellä tai useammalla ikkunalla), lattioineen, kiinnitystarvikkeineen ja asennusohjeineen, joten piharakennuksen rakentaminen on helppoa ja aikaa säästävää.
Pihamökkipakettiin, jonka seinäpaksuus on 40 mm, sisältyy mallin mukaan:
Puumateriaalina on käytetty 100 % pohjoismaista laatukuusta
Erikoiskuivasta liimapuusta (8–12 %) valmistetut pariovi ja ikkunat
Lasi-ikkunat (avattavat, toinen lasi kaksinkertainen), sisältää helat
Lasiruudullinen pariovi, sisältää helat
Lattia ja katto valmistettu 18 mm paksusta ponttilaudasta
Terassin lattia on 21 mm paksua höylättyä ja kyllästettyä lautaa
Kyllästetyt perustuspuut
Myrskysuojat
Kiinnitystyökalut (naulat ja ruuvit)
Asennusohjeet
Hinnat ovat voimassa Pihatuurin tehtaan varastossa ja sisältävät arvonlisäveron.
Hinnat eivät sisällä kuljetusta.
Seinät
Seinän ulkomitta
380 x 575 cm
Ulkoseinän pituus
400 x 595 cm
Ulkoseinän paksuus
40 mm
Sivuseinän korkeus
217 cm
Katto
Harjakorkeus
268 cm
Katon pinta-ala (㎡)
27,4 ㎥
Katon kaltevuus (°)
15°
Kattolauta
18 mm
Oven päällinen vakiokatos
245 cm
Lattia
Lattia pinta-ala (㎡)
12,9 ㎡ + 8,9 ㎡
Lattialauta
18 mm
Muut Tiedot
Ikkunat kaksinkertaisilla laseilla
1 x 756 x 990 mm / 1 x 1472 x 990 mm
Ovi kaksinkertaisilla laseilla
1425 x 1955 mm
Rakkennuksen tilavuus
ca. 29,9 ㎥
Kyllästetyt perustuspuut
45 x 70 mm
Paketin tiedot
Tuotepakkauksen mitat
597x108x66 cm
Tuotepakkauksen paino
ca. 1350 kg
