Pihamökki Göteborg D 70 mm
7 540.00 € – 8 890.00 €Price range: 7 540.00 € through 8 890.00 €
Hintaan sisältyy liimapuukarmiset kaksiosaiset lasi-ikkunat, ruostumattomasta teräksestä valmistettu kynnyspaketti, kyllästetyt perustuspuut, kiinnitystarvikkeet ja asennusohjeet. Hinta ei sisällä kuljetusta ja katemateriaalia.
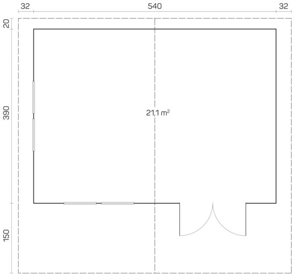
| Ulkomitat: | 540 x 390 cm |
| Hirsivahvuus: | 70 mm |
Pihatuurin piharakennustehtaalla valmistettavat 70 mm:n pihavajat, hirsitalot, vajat, paviljongit, saunat, kesämökit, grillikodat ja puiset autotallit toimitetaan täydellisinä ovineen, ikkunoineen, lattioineen, kiinnitystarvikkeineen ja asennusohjeineen, joten piharakennuksen rakentaminen on helppoa ja aikaa säästävää.
Seinäpaksuudeltaan tuotepiirustuksen mukaisesti 70 mm Pihatuuri-pihamökkipaketti sisältää:
Puumateriaalina on käytetty 100 % pohjoismaista laatukuusta
Erikoisliimapuusta valmistetut (8–12 %) ovet ja ikkunat.
Ristikolliset, avattavat lasiruutuikkunat (molemmat avattavia) kaksinkertaista lasia, sisältää helat
Lasiruudullinen pariovi, sisältää helat
Katto on valmistettu 18 mm paksusta ponttilaudasta
Ruostumattomat teräskynnykset
Kierretangot
Kyllästetyt perustuspuut
Kiinnitystyökalut (naulat ja ruuvit)
Asennusohjeet
Hinnat ovat voimassa Pihatuurin tehtaan varastossa ja sisältävät arvonlisäveron.
Hinnat eivät sisällä kuljetusta.
Seinät
Seinän ulkomitta
540 x 390 cm
Ulkoseinän pituus
560 x 410 cm
Ulkoseinän paksuus
70 mm
Sivuseinän korkeus
217 cm
Katto
Harjakorkeus
291 cm
Katon pinta-ala (㎡)
35,2 ㎥
Katon kaltevuus (°)
15°
Kattolauta
18 mm
Oven päällinen vakiokatos
150 cm
Lattia
Lattia pinta-ala (㎡)
21,1 ㎡
Lattialauta
28 mm
Muut Tiedot
Ikkunat kaksinkertaisilla laseilla
2 x 1530 x 990 mm ISO
Ovi kaksinkertaisilla laseilla
1425 x 1955 mm ISO
Rakkennuksen tilavuus
ca. 50,9 ㎥
Kyllästetyt perustuspuut
60 x 70 mm
Paketin tiedot
Tuotepakkauksen mitat
560x120x85 cm560x120x20 cm
Tuotepakkauksen paino
ca. 2450 kg
