Pihamökki Gloria H
3 990.00 € Original price was: 3 990.00 €.2 190.00 €Current price is: 2 190.00 €.
Hintaan sisältyy lasiruudullinen liimapuupariovi, ruostumattomasta teräksestä valmistettu kynnyspaketti, lattia, kyllästetyt perustuspuut, kiinnitystarvikkeet ja asennusohjeet. Hinta ei sisällä kuljetusta ja katemateriaalia.
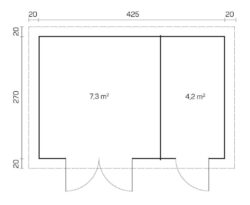
| Ulkomitat: | 425 x 270 cm |
| Hirsivahvuus: | 28 mm |
Varastossa
Kuljetus koko Manner-Suomessa nosturiautolla: 450€
Pihatuurin tehtaalla tuotettujen 28 mm:n pihamökkien, hirsitalojen, lasten leikkimökkien, vajojen, saunojen, kesämökkien ja autotallien mukana toimitetaan vakiovarusteena ovet (ikkunat), lattiat, kiinnikkeet, asennusohjeet jne., mikä tekee rakentamisesta helppoa ja aikaa säästävää.
Pihamökkipakettiin, jonka seinäpaksuus on 28 mm, sisältyy mallin mukaan:
Puumateriaalina on käytetty 100 % pohjoismaista laatukuusta
Erikoiskuivasta liimapuusta (8–12 %) valmistetut pariovi
Lasiruudullinen pariovi, sisältää helat
Lattia ja katto valmistettu 18 mm paksusta ponttilaudasta
Kyllästetyt perustuspuut
Myrskysuojat
Kiinnitystarvikkeet (naulat ja ruuvit)
Asennusohjeet
Hinnat ovat voimassa Pihatuurin tehtaan varastossa ja sisältävät arvonlisäveron.
Hinnat eivät sisällä kuljetusta.
Seinät
Seinän ulkomitta
425 x 270 cm
Ulkoseinän pituus
445 x 290 cm
Ulkoseinän paksuus
28 mm
Sivuseinän korkeus
188/211 cm
Katto
Harjakorkeus
217 cm
Katon pinta-ala (㎡)
14,8 ㎥
Katon kaltevuus (°)
5°
Kattolauta
18 mm
Oven päällinen vakiokatos
20 cm
Lattia
Lattia pinta-ala (㎡)
14,8 ㎡
Lattialauta
18 mm
Muut Tiedot
Liimapuu ovi
1 x 840 x 1955 mm / 1 x 1425 x 1955 mm
Rakkennuksen tilavuus
ca. 22 ㎥
Kyllästetyt perustuspuut
45x 70 mm
Paketin tiedot
Tuotepakkauksen mitat
490 x 108 x 52 cm
Tuotepakkauksen paino
ca. 850 kg
