Hirsilato TOBIAS 25m2 rakomalli, suorat sivu- seinät
3 880.00 € – 4 590.00 €Price range: 3 880.00 € through 4 590.00 €
Hirsilato rakomalli 25m2. Suomalaiseen maisemaan hyvin istuva rakomalli.
Rakoliiteriin mahtuu talven takkapuut tai puutarhatyökalut ruohonleikkureineen säältä suojaan.
Kuvaus
Rakoliiterin toimitussisältö:
-
-
- neliöhirsi 40 x 143 mm
- Rakomalli (tuuletusraot seinissä)
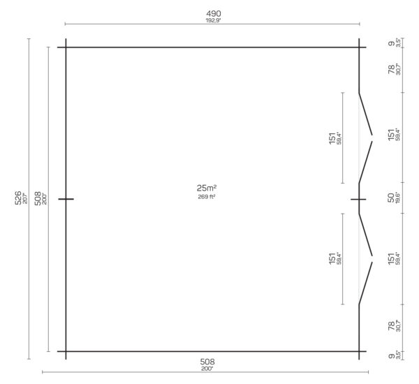
- Pohjan koko: leveys 5080 (5260) mm, pituus 4900 (5080) mm
- Harjakorkeus 3260 mm
- Sivuseinäkorkeus 1720 mm
- Katon harjapituus 5760 mm
- pariovet 2 x 1518 x 1650 mm (Ovet koottuna)
- räystäs- ja otsalaudat 40 x 143 mm
- helppo kasata
- Katto 18 mm paksusta profiililevystä
-
PERUSTOIMITUSPAKETTI EI SISÄLLÄ:
- Lattiapaketti (sis. painekyllästetty lattianiskat 45 x 70mm, lattialaudat 32 x 125mm, kiinnitystarvikkeet (Ruuvit ja naulat)
Tuotetiedot
Seinät
Ulkoseinän pituus
526 x 508 cm
Ulkoseinän paksuus
40 mm
Sivuseinän korkeus
172 cm
Katto
Harjakorkeus
326 cm
Lattia
Lattia pinta-ala (㎡)
24,9 m2
×
