Hirsihuvila Canarias, ovi ja ikkunat kaksinkertaisilla laseilla
14 999.00 € Original price was: 14 999.00 €.12 990.00 €Current price is: 12 990.00 €.
Hintaan sisältyy liimapuukarmiset kaksiosaiset lasi-ikkunat, ruostumattomasta teräksestä valmistettu kynnyspaketti, lattia, kyllästetyt perustuspuut, kiinnitystarvikkeet ja asennusohjeet. Hinta ei sisällä kuljetusta ja katemateriaalia.
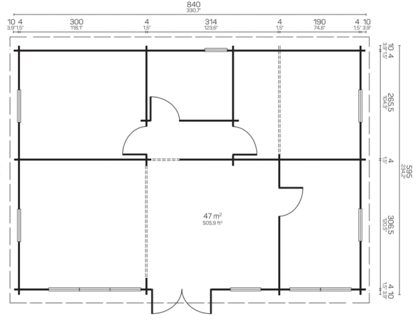
| Ulkomitat: | 840×595 cm |
| Hirsivahvuus: | 40 mm |
Saatavilla jälkitilauksella
Kuljetus koko Manner-Suomessa nosturiautolla: 450€
Pihatuurin piharakennustehtaalla valmistettavat 40 mm:n pihavajat, hirsitalot, vajat, paviljongit, saunat, kesämökit, grillikodat ja puiset autotallit toimitetaan täydellisinä ovineen, ikkunoineen (mallista riippuen, tuote voidaan toimittaa ilman ikkunoita, yhdellä tai useammalla ikkunalla), lattioineen, kiinnitystarvikkeineen ja asennusohjeineen, joten piharakennuksen rakentaminen on helppoa ja aikaa säästävää.
Pihamökkipakettiin, jonka seinäpaksuus on 40 mm, sisältyy mallin mukaan:
Puumateriaalina on käytetty 100 % pohjoismaista laatukuusta
Erikoiskuivasta liimapuusta (8–12 %) valmistetut pariovi ja ikkunat
Lasiruudullinen pariovi, sisältää helat
Lasi-ikkunat (avattavat, toinen lasi kaksinkertainen), sisältää helat
Lattia ja katto valmistettu 18 mm paksusta ponttilaudasta
Kyllästetyt perustuspuut
Myrskysuojat
Kiinnitystyökalut (naulat ja ruuvit)
Asennusohjeet
Hinnat ovat voimassa Pihatuurin tehtaan varastossa ja sisältävät arvonlisäveron.
Hinnat eivät sisällä kuljetusta.
Seinät
Seinän ulkomitta
820×575 cm
Ulkoseinän pituus
840×595 cm
Ulkoseinän paksuus
40 mm
Sivuseinän korkeus
268/222 cm
Katto
Harjakorkeus
272 cm
Katon pinta-ala (㎡)
55 ㎥
Katon kaltevuus (°)
5°
Kattolauta
18 mm
Oven päällinen vakiokatos
20/30 cm
Lattia
Lattia pinta-ala (㎡)
47 ㎡
Lattialauta
18 mm
Muut Tiedot
Ikkunat kaksinkertaisilla laseilla
4 x 765 x 990 mm, 1 x 530 x 530 mm, 1 x 729 x 1479 mm, 1 x 1459 x 1479 mm, 1 x 2188 x 1479 mm
Liimapuu ovi
4x 690×1955 mm
Ovi kaksinkertaisilla laseilla
1425 x 1955 mm
Rakkennuksen tilavuus
ca. 113 ㎥
Kyllästetyt perustuspuut
60 x 70 mm
Paketin tiedot
Tuotepakkauksen mitat
600×120×85 cm + 600×120×60 cm
Tuotepakkauksen paino
ca. 3400 kg
