Autotalli Caravan 70 mm
12 690.00 € Original price was: 12 690.00 €.11 290.00 €Current price is: 11 290.00 €.
Hintaan sisältyy lasiruudullinen liimapuuovi ja lasi-ikkunat, kyllästetyt perustuspuut, kiinnitystarvikkeet ja asennusohjeet. Hinta ei sisällä kuljetusta ja katemateriaalia.
Saatavilla jälkitilauksella
Kuljetus koko Manner-Suomessa nosturiautolla: 490€
Pihatuurin piha- ja puutalotehtaalla valmistettavat pihavajat, hirsitalot, katokset, paviljongit, saunat, kesämökit, grillikodat ja puiset autotallit toimitetaan täydellisinä ovineen, ikkunoineen, kiinnitystarvikkeineen ja asennusohjeineen, joten pihamökin rakentaminen on helppoa ja aikaa säästävää.
Autotallipakettiin, jonka seinäpaksuus on 70 mm, sisältyy mallin mukaan:
Puumateriaalina on käytetty 100 % pohjoismaista laatukuusta
Erikoisliimapuusta valmistetut (8–12 %) ovet ja ikkunat.
Kaksoislasitetut ikkunat (molemmat avattavia), sisältää helat
Lasiruudullinen ovi, sisältää helat
Katto valmistettu 18 mm paksusta ponttilaudasta
Kyllästetyt perustuspuut
Myrskysuojat
Kiinnitystyökalut (naulat ja ruuvit)
Asennusohjeet
Hinnat ovat voimassa Pihatuurin tehtaan varastossa ja sisältävät arvonlisäveron.
Hinnat eivät sisällä kuljetusta.
Seinät
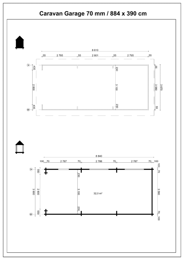
Seinän ulkomitta
864 x 370 cm
Ulkoseinän pituus
390 x 884 cm
Ulkoseinän paksuus
70 mm
Sivuseinän korkeus
364 cm
Katto
Harjakorkeus
436 cm
Katon pinta-ala (㎡)
43,5 m²
Katon kaltevuus (°)
12°
Kattolauta
18 mm
Oven päällinen vakiokatos
45 cm / 45 cm
Muut Tiedot
Ikkunat kaksinkertaisilla laseilla
2 x 990 x 1530 mm
Ovi kaksinkertaisilla laseilla
840 x 1955 mm
Rakkennuksen tilavuus
ca. 114 m3
Kyllästetyt perustuspuut
28 x 55 mm
