Pihamökki Andrea, ovi ja ikkunat kaksinkertaisilla laseilla
5 250.00 € Original price was: 5 250.00 €.3 190.00 €Current price is: 3 190.00 €.
Hintaan sisältyy lasi-ikkunalliset ovet, laudoitettu ovi, lasi-ikkuna, ruostumattomasta teräksestä valmistettu kynnyspaketti, lattia, kyllästetyt perustuspuut, kiinnitystarvikkeet ja asennusohjeet. Hinta ei sisällä kuljetusta ja katemateriaalia.
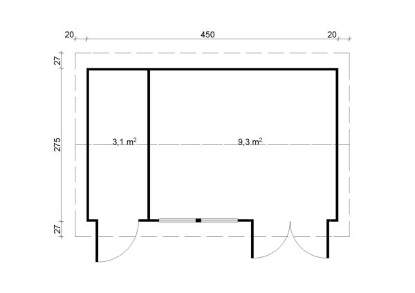
| Ulkomitat: | 450 x 275 cm |
| Hirsivahvuus: | 40 mm |
Varastossa
Kuljetus koko Manner-Suomessa nosturiautolla: 450€
Pihatuurin piharakennustehtaalla valmistettavat 40 mm:n pihavajat, hirsitalot, vajat, paviljongit, saunat, kesämökit, grillikodat ja puiset autotallit toimitetaan täydellisinä ovineen, ikkunoineen (mallista riippuen, tuote voidaan toimittaa ilman ikkunoita, yhdellä tai useammalla ikkunalla), lattioineen, kiinnitystarvikkeineen ja asennusohjeineen, joten piharakennuksen rakentaminen on helppoa ja aikaa säästävää.
Pihamökkipakettiin, jonka seinäpaksuus on 40 mm, sisältyy mallin mukaan:
Puumateriaalina on käytetty 100 % pohjoismaista laatukuusta
Erikoiskuivasta (8–12 %) liimapuusta valmistetut ovet ja pari-ikkunat.
Saranoidut lasi-ikkunat, sisältää helat
Lautaverhoiltu ovi, ovi sisältää helat
Lasiruudullinen pariovi, sisältää helat
Lattia ja katto valmistettu 18 mm paksusta ponttilaudasta
Kyllästetyt perustuspuut
Myrskysuojat
Kiinnitystyökalut (naulat ja ruuvit)
Asennusohjeet
Hinnat ovat voimassa Pihatuurin tehtaan varastossa ja sisältävät arvonlisäveron.
Hinnat eivät sisällä kuljetusta.
Seinät
Seinän ulkomitta
450 x 275 cm
Ulkoseinän pituus
470 x 295 cm
Ulkoseinän paksuus
40 mm
Sivuseinän korkeus
210 cm
Katto
Harjakorkeus
254 cm
Katon pinta-ala (㎡)
17 ㎥
Katon kaltevuus (°)
16㎥
Kattolauta
18 mm
Oven päällinen vakiokatos
20 cm
Lattia
Lattia pinta-ala (㎡)
12 ㎡
Lattialauta
18 mm
Muut Tiedot
Ikkunat kaksinkertaisilla laseilla
1530 x 1560 mm
Ovi laudalla
840 x 1835 mm
Ovi kaksinkertaisilla laseilla
1 x 1425 x 1835 mm
Rakkennuksen tilavuus
ca. 27 ㎥
Kyllästetyt perustuspuut
45 x 70 mm
Paketin tiedot
Tuotepakkauksen mitat
510 x 108 x 70 cm
Tuotepakkauksen paino
ca. 1100 kg
